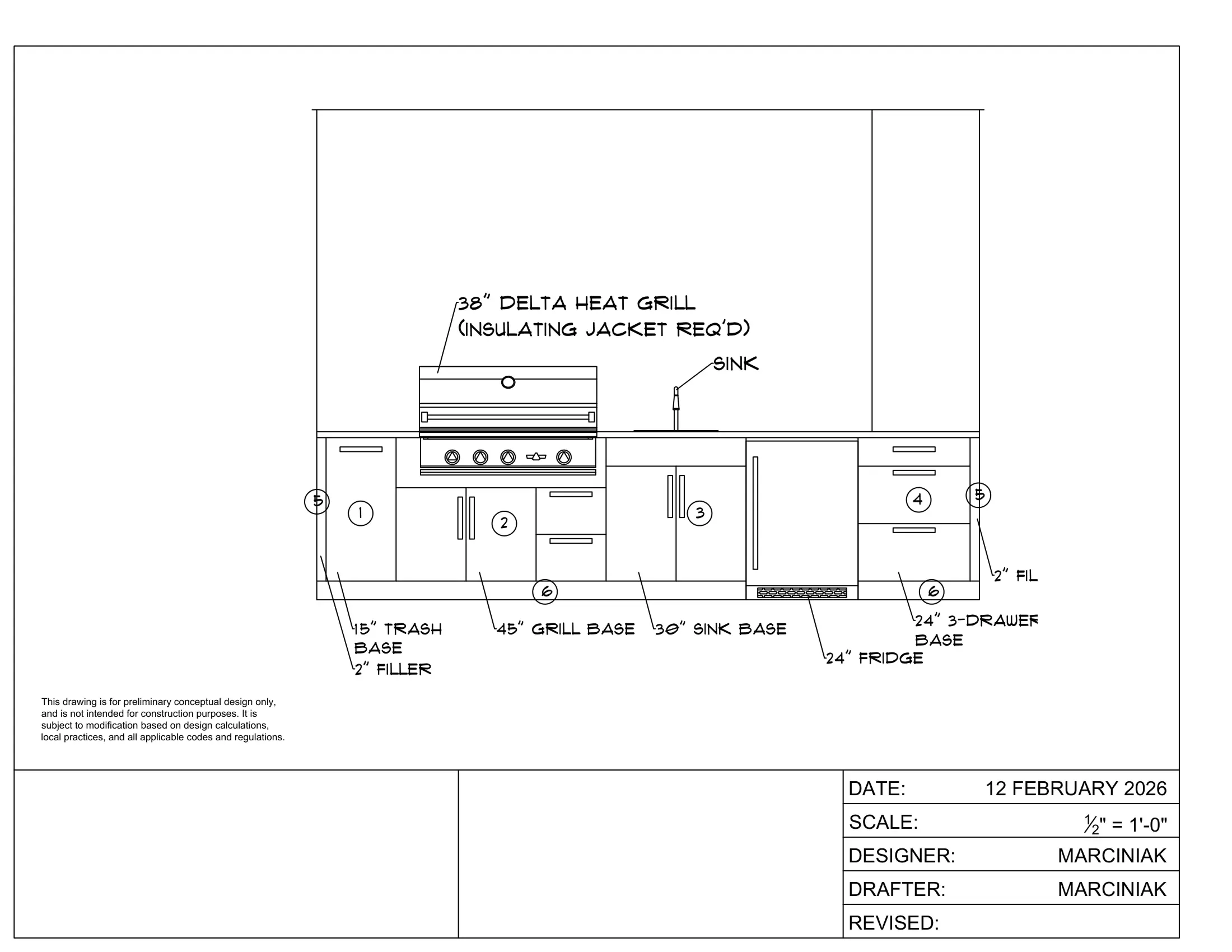
We design outdoor kitchens around how you cook, host, and gather. Layouts are planned with careful attention to workflow, appliances, storage, and integration with surrounding spaces.

We design outdoor kitchens around how you cook, host, and gather. Layouts are planned with careful attention to workflow, appliances, storage, and integration with surrounding spaces.
Outdoor kitchens bring people together in powerful ways. They turn backyards into social hubs and extend everyday living outdoors. We love creating spaces where memories are made over meals and conversation.

Smart planning, refined aesthetics, and construction-ready designs. Your kitchen will feel cohesive with your home while standing up to years of use.
Our kitchens are built for real use—messy, joyful, everyday living included. We prioritize durable materials, weather-resistant finishes, and layouts that make cooking and entertaining effortless.
.webp)

We start with a detailed conversation to understand your goals, constraints, site conditions, and priorities.
We evaluate your property, existing conditions, and opportunities — building a foundation for smart design decisions.
We produce initial schematic designs to explore layout options, material ideas, and spatial organization.
We refine the design together — receiving your feedback and iterating until the direction feels right.
We translate approved concepts into actionable plans and specifications you can build from.
We provide guidance during construction, coordination with vendors, and solutions as questions arise.
If you want recurring support, we can check in regularly, extend advisory hours, or assist with new phases.
.webp)